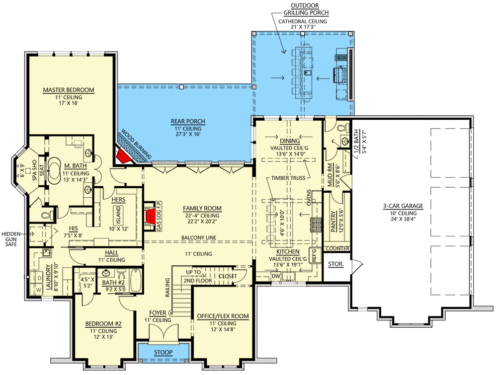
Main Level

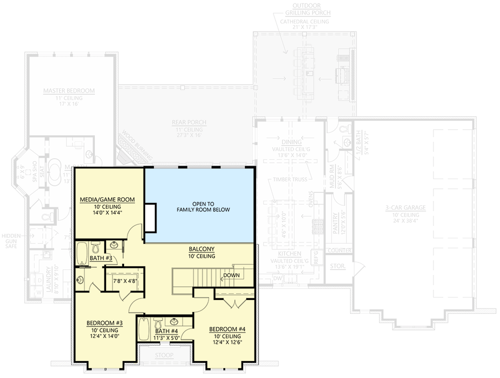
2nd Floor

Total Heated Area:3,976 sq. ft.
1st Floor:2,904 sq. ft.
2nd Floor:1,072 sq. ft.
Storage:40 sq. ft.
Porch, Combined:477 sq. ft.
Bedrooms:4
Full Bathrooms:3
Standard Foundations:Crawl, Slab, Stem Wall
Standard Type(s):2x6
Width:94' 0"
Depth:69' 4"
Max Ridge Height:38' 0"
Type:Attached
Area:1028 sq. ft.
Count:3 cars
Entry Location:Side
Floor / Height:First Floor / 11' 0"Second Floor / 10' 0"
Primary Pitch:10 On 12
Secondary Pitch:18 On 12
Framing Type:Stick
If you need more information, pleasefeel free to contact us.
Contact: Mr. Vino Zhang
Cell: +86-135 6063 2003 (Whatsapp and Wechat No.)
Email: vino@jncnhomes.com