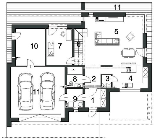
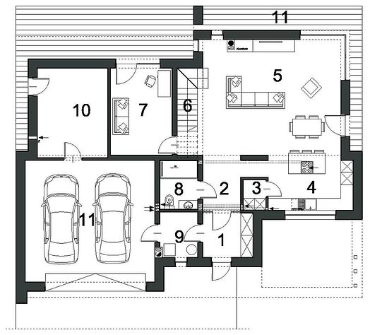
Ground floor

1. Wiatrołap5,36 m2
2. Korytarz6,14 m2
3. Spiżarnia1,66 m2
4. Kuchnia11,08 m2
5. Pokój dzienny38,26 m2
6. Schody5,32 m2
7. Pokój12,78 m2
8. Łazienka4,48 m2
9. Kotłownia4,14 m2
10. Pom. gospodarcze14,86 m2
11. Garaż dwustanowiskowy37,90 m2
12. Taras(35,65 m2)
Razem141,98 m2
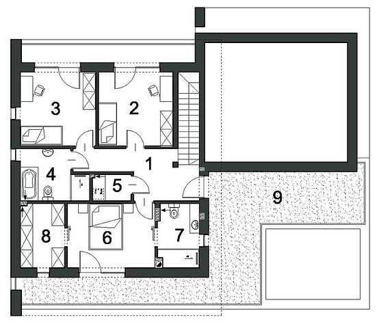
1st floor

1. Korytarz10,02 m2
2. Pokój12,37 m2
3. Pokój12,37 m2
4. Łazienka7,03 m2
5. Pom. gospodarcze2,44 m2
6. Pokój12,62 m2
7. Łazienka5,82 m2
8. Garderoba6,40 m2
9. Taras(38,52 m2)
Razem69,07 m2
If you need more information, pleasefeel free to contact us.
Contact: Mr. Vino Zhang
Cell: +86-135 6063 2003 (Whatsapp and Wechat No.)
Email: vino@jncnhomes.com