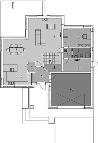
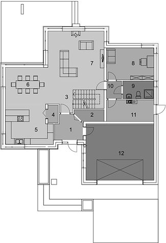
Ground floor

1. Wiatrołap6,58 m2
2. Garderoba3,28 m2
3. Hall + schody11 m2
4. Spiżarnia1,82 m2
5. Kuchnia18,48 m2
6. Jadalnia16,19 m2
7. Pokój dzienny34,39 m2
8. Pokój15,73 m2
9. Łazienka5,58 m2
10. Korytarz2,69 m2
11. Kotłownia10,35 m2
12. Garaż dwustanowiskowy39,27 m2
Razem165,36 m2
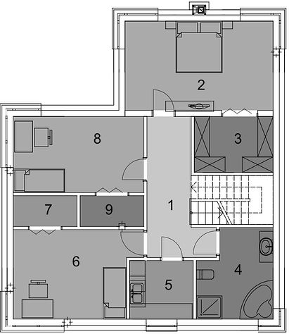
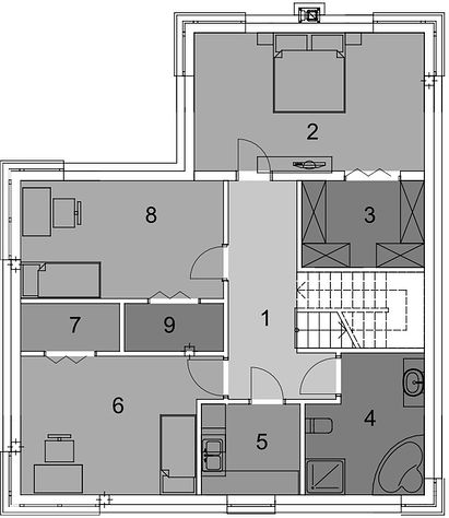
Attic

1. Hall10,11 m2
2. Pokój19,75 m2
3. Garderoba6,56 m2
4. Łazienka9,29 m2
5. Pom. gospodarcze5,51 m2
6. Pokój16,01 m2
7. Garderoba2,93 m2
8. Pokój14,87 m2
9. Garderoba2,88 m2
Razem87,91 m2
If you need more information, pleasefeel free to contact us.
Contact: Mr. Vino Zhang
Cell: +86-135 6063 2003 (Whatsapp and Wechat No.)
Email: vino@jncnhomes.com