Ground floor

1. Wiatrołap4,88 m2
2. Hall4,86 m2
3. Kuchnia7,95 m2
4. Spiżarnia1,76 m2
5. Pokój dzienny + jadalnia22,70 m2
6. Pokój9,44 m2
7. Łazienka3,49 m2
8. Garderoba + pomieszczenie gospodarcze5,95 m2
9. Pom. gospodarcze5,82 m2
10. Garaż jednostanowiskowy16,32 m2
Razem83,17 m2
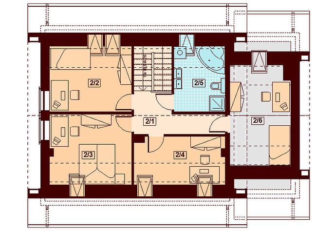
Attic

1. Korytarz6,82 m2
2. Pokój11,15 m2 (16,06 m2)
3. Pokój12,08 m2 (16,98 m2)
4. Pokój8,10 m2 (13,56 m2)
5. Łazienka6,95 m2 (10 m2)
6. Strych12,01 m2 (23,08 m2)
Razem57,11 m2 (86,50 m2)
If you need more information, pleasefeel free to contact us.
Contact: Mr. Vino Zhang
Cell: +86-135 6063 2003 (Whatsapp and Wechat No.)
Email: vino@jncnhomes.com