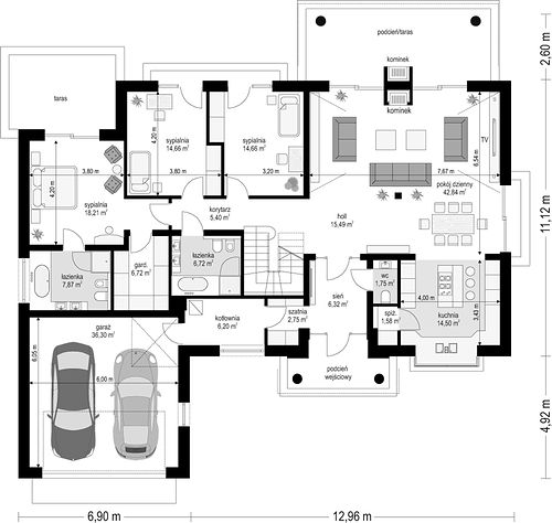
Ground floor

1. Wiatrołap6,32 m2
2. Wc1,75 m2
3. Kuchnia14,50 m2
4. Spiżarnia1,58 m2
5. Hall15,49 m2
6. Pokój dzienny42,84 m2
7. Korytarz5,40 m2
8. Pokój14,66 m2
9. Pokój14,66 m2
10. Pokój18,21 m2
11. Łazienka7,87 m2
12. Garderoba6,72 m2
13. Łazienka6,72 m2
14. Garderoba2,75 m2
15. Kotłownia6,20 m2
16. Garaż dwustanowiskowy36,30 m2
Razem201,97 m2
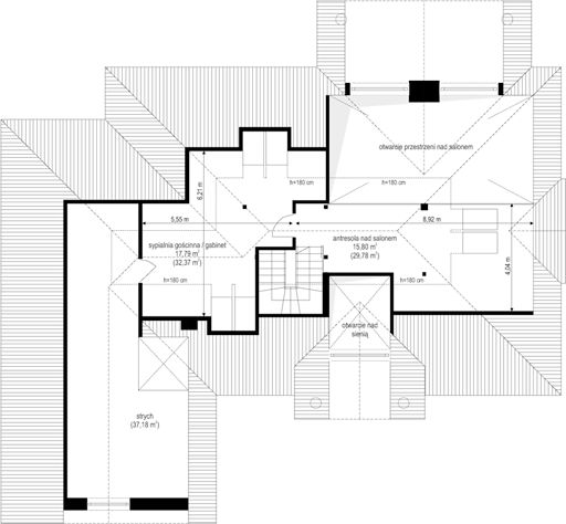
Attic

1. Antresola15,80 m2 (29,78 m2)
2. Pokój17,79 m2 (32,37 m2)
3. Strych
Razem33,59 m2 (62,15 m2)
If you need more information, pleasefeel free to contact us.
Contact: Mr. Vino Zhang
Cell: +86-135 6063 2003 (Whatsapp and Wechat No.)
Email: vino@jncnhomes.com