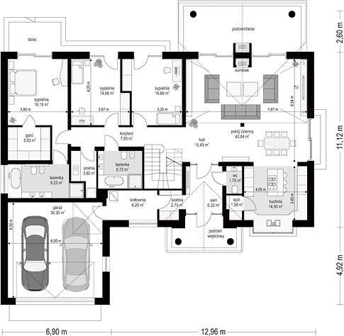
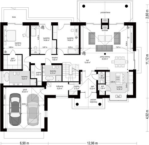
Ground floor

1. Wiatrołap6,32 m2
2. Garderoba2,75 m2
3. Kotłownia6,20 m2
4. Garaż dwustanowiskowy36,30 m2
5. Wc1,75 m2
6. Hall15,49 m2
7. Pokój dzienny42,84 m2
8. Kuchnia14,50 m2
9. Spiżarnia1,58 m2
10. Pokój14,66 m2
11. Łazienka6,72 m2
12. Pokój14,66 m2
13. Pom. gospodarcze3,80 m2
14. Łazienka9,23 m2
15. Pokój18,18 m2
16. Garderoba5,63 m2
17. Korytarz7,65 m2
Razem208,26 m2
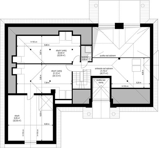
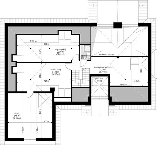
Attic

1. Antresola21,75 m2 (30,77 m2)
2. Łazienka2,93 m2
3. Pokój20,59 m2 (32,09 m2)
4. Pokój21,72 m2 (30,12 m2)
5. Strych6,05 m2 (32,55 m2)
Razem73,04 m2 (128,46 m2)
If you need more information, pleasefeel free to contact us.
Contact: Mr. Vino Zhang
Cell: +86-135 6063 2003 (Whatsapp and Wechat No.)
Email: vino@jncnhomes.com