Ground floor

1. Wiatrołap5,35 m2
2. Spiżarnia2,81 m2
3. Kuchnia11,53 m2
4. Pokój dzienny + jadalnia33,76 m2
5. Hall16,68 m2
6. Pokój21,06 m2
7. Łazienka7,91 m2
8. Pokój11,76 m2
9. Pokój11,76 m2
10. Wc2,92 m2
11. Kotłownia6,29 m2
12. Garaż jednostanowiskowy19,50 m2
Razem151,33 m2
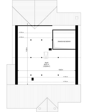
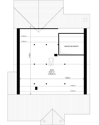
Attic

1. Strych64,91 m2 (122,99 m2)
Razem64,91 m2 (122,99 m2)
If you need more information, pleasefeel free to contact us.
Contact: Mr. Vino Zhang
Cell: +86-135 6063 2003 (Whatsapp and Wechat No.)
Email: vino@jncnhomes.com