Modern houses
LK&1099
PLAN DESCRIPTION
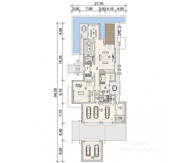
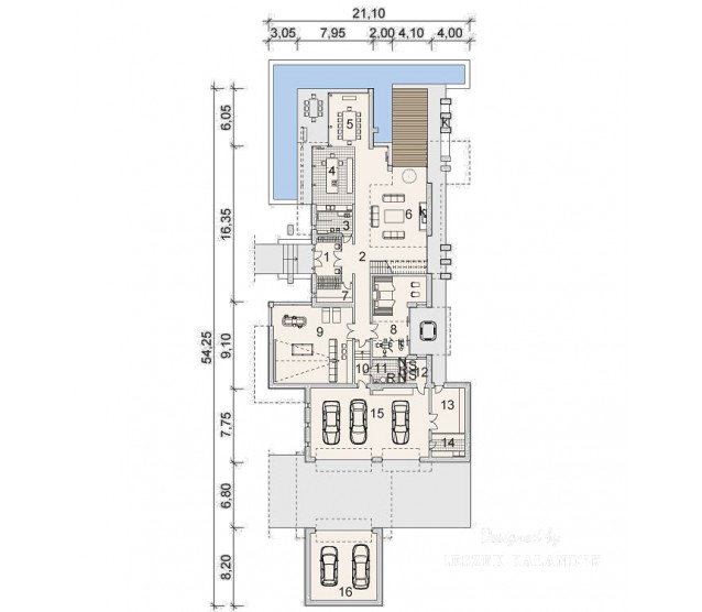
FLOOR PLANS

Ground floor

Floor


FULL SPECS & FEATURES
1. Usable area574,44 m²
2. Area garage138,47 m²
3. Additional area38,76 m²
4. Total surface984 m²
5. Building area610 m²
6. Net volume2545 m³
7. Gross volume3751 m³
8. Energy for heating37,69 kWh/m²*year
9. Building height9,26 m
10. Roof angle1,1 °
11. Roof area366 m²
12. Сeiling height3,00/2,70 m
13. Minimum plot size61,7 x 29,55 m


If you need more information, pleasefeel free to contact us.
Contact: Mr. Vino Zhang
Cell: +86-135 6063 2003 (Whatsapp and Wechat No.)
Email: vino@jncnhomes.com