Modern houses
LK&1206
PLAN DESCRIPTION
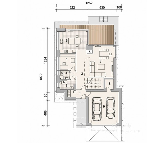
FLOOR PLANS

Ground floor

Floor


FULL SPECS & FEATURES
1. Usable area227,93 m²
2. Area garage35,36 m²
3. Additional area3,18 m²
4. Total surface382,44 m²
5. Building area209,27 m²
6. Net volume707 m³
7. Gross volume1566 m³
8. Energy for heating14,496 kWh/m²*year
9. Building height10,59 m
10. Roof angle30 °
11. Roof area132 m²
12. Сeiling height2,65 m
13. Minimum plot size30,6 x 19,9 m


If you need more information, pleasefeel free to contact us.
Contact: Mr. Vino Zhang
Cell: +86-135 6063 2003 (Whatsapp and Wechat No.)
Email: vino@jncnhomes.com