Modern houses
LK&1274
PLAN DESCRIPTION
FLOOR PLANS

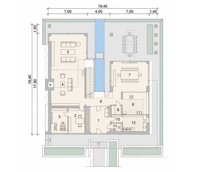
Ground floor

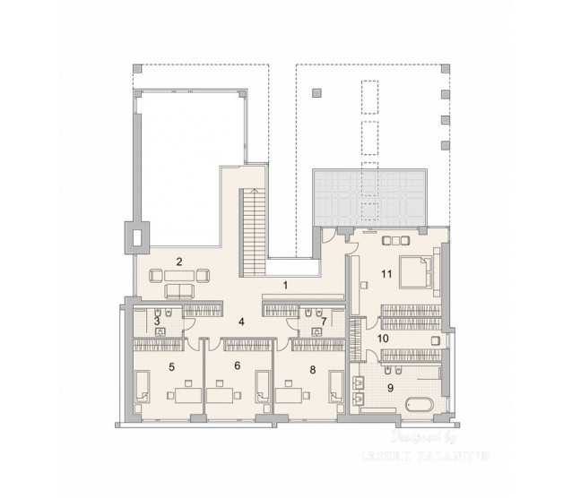
Floor


FULL SPECS & FEATURES
1. Usable area383,17 m²
2. Total surface566,14 m²
3. Building area320,04 m²
4. Net volume1149,51 m³
5. Building height10,7 m
6. Roof angle35 °
7. Сeiling height3 m
8. Minimum plot size27,4 x 28,9 m


If you need more information, pleasefeel free to contact us.
Contact: Mr. Vino Zhang
Cell: +86-135 6063 2003 (Whatsapp and Wechat No.)
Email: vino@jncnhomes.com