Modern houses
LK&1525
PLAN DESCRIPTION
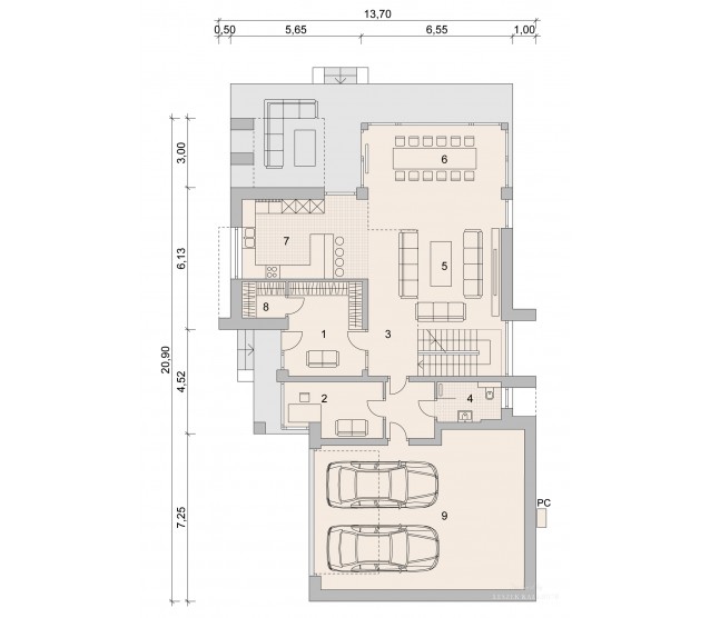
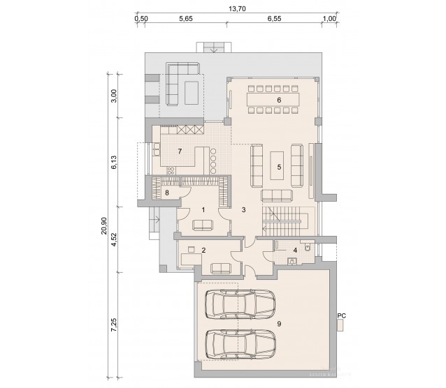
FLOOR PLANS

Basement

Ground floor

Floor


FULL SPECS & FEATURES
1. Usable area216,28 m²
2. Basement area166,05 m²
3. Area garage57,98 m²
4. Total surface560,37 m²
5. Building area219,71 m²
6. Net volume1820,3 m³
7. Gross volume2336,46 m³
8. Building height7,95 m
9. Roof angle5 °
10. Сeiling height2,50; 2,90; 2,82 m
11. Minimum plot size27,9 x 20,2 m


If you need more information, pleasefeel free to contact us.
Contact: Mr. Vino Zhang
Cell: +86-135 6063 2003 (Whatsapp and Wechat No.)
Email: vino@jncnhomes.com