Traditional houses
LK&633
PLAN DESCRIPTION
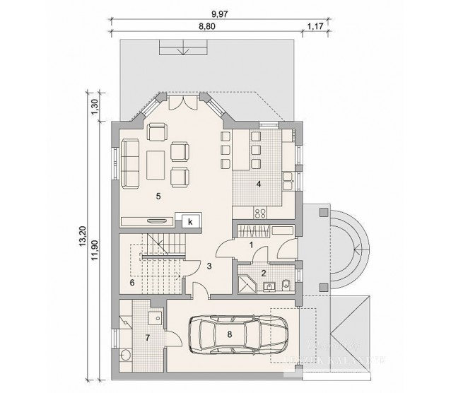
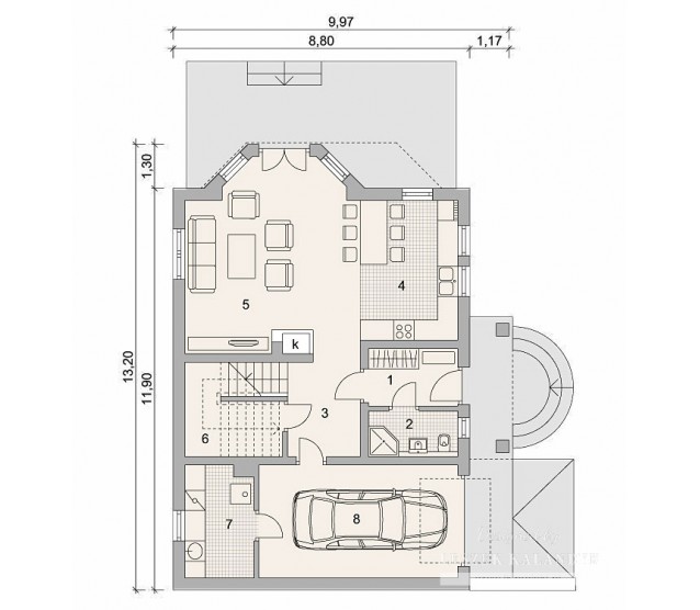
FLOOR PLANS

Ground floor

Attic


FULL SPECS & FEATURES
1. Usable area123,04 m²
2. Area garage19,76 m²
3. Total surface214,01 m²
4. Building area109,29 m²
5. Net volume452,2 m³
6. Gross volume740,3 m³
7. Energy for heating6,93 kWh/m²*year
8. Building height8,59 m
9. Attic wall height0,94 m
10. Roof angle42 °
11. Roof area193,2 m²
12. Сeiling height2,71/2,55 m
13. Minimum plot size20,2 x 17,07 m


If you need more information, pleasefeel free to contact us.
Contact: Mr. Vino Zhang
Cell: +86-135 6063 2003 (Whatsapp and Wechat No.)
Email: vino@jncnhomes.com