Traditional houses
LK&729
PLAN DESCRIPTION
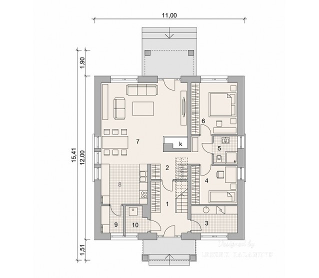
FLOOR PLANS

Ground floor

Attic


FULL SPECS & FEATURES
1. Usable area100,62 m²
2. Attic area24,94 m²
3. Total surface207,38 m²
4. Building area144,73 m²
5. Net volume413,65 m³
6. Gross volume788,19 m³
7. Energy for heating6,41 kWh/m²*year
8. Building height7,74 m
9. Attic wall height1,92 / 0,1 m
10. Roof angle35 °
11. Roof area222,1 m²
12. Сeiling height2,7 m
13. Minimum plot size19 x 21,41 m


If you need more information, pleasefeel free to contact us.
Contact: Mr. Vino Zhang
Cell: +86-135 6063 2003 (Whatsapp and Wechat No.)
Email: vino@jncnhomes.com