Traditional houses
LK&954
PLAN DESCRIPTION
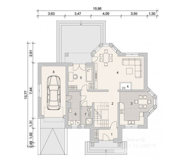
FLOOR PLANS

Ground floor

Attic


FULL SPECS & FEATURES
1. Usable area157,65 m²
2. Area garage21,65 m²
3. Additional area10,09 m²
4. Total surface290,52 m²
5. Building area154,95 m²
6. Net volume566 m³
7. Gross volume983 m³
8. Energy for heating10,12 kWh/m²*year
9. Building height8,9 m
10. Attic wall height1,03 m
11. Roof angle40 °
12. Roof area315 m²
13. Сeiling height2,65 m
14. Minimum plot size21,77 x 23,96 m


If you need more information, pleasefeel free to contact us.
Contact: Mr. Vino Zhang
Cell: +86-135 6063 2003 (Whatsapp and Wechat No.)
Email: vino@jncnhomes.com