Traditional houses
LK&937
PLAN DESCRIPTION
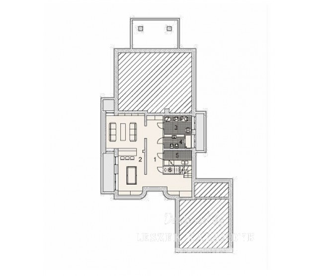
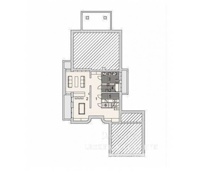
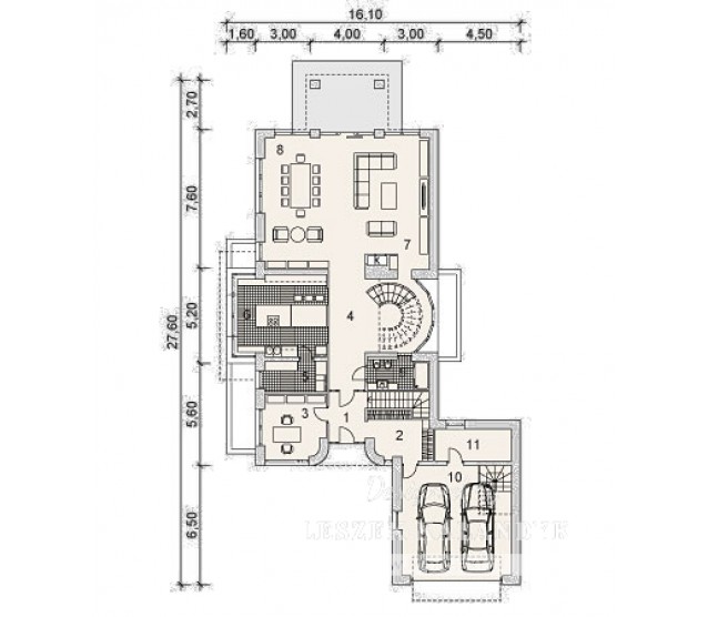
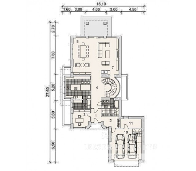
FLOOR PLANS

Basement

Ground floor

Attic


FULL SPECS & FEATURES
1. Usable area256,56 m²
2. Basement area84,98 m²
3. Area garage32,35 m²
4. Additional area31,26 m²
5. Total surface399,95 m²
6. Building area259,03 m²
7. Net volume1039,6 m³
8. Gross volume1850,1 m³
9. Energy for heating23,86 kWh/m²*year
10. Building height8,79 m
11. Attic wall height0,9 m
12. Roof angle42 °
13. Roof area365,42 m²
14. Сeiling height2,50/2,73/2,55 m
15. Minimum plot size23,5 x 35,6 m


If you need more information, pleasefeel free to contact us.
Contact: Mr. Vino Zhang
Cell: +86-135 6063 2003 (Whatsapp and Wechat No.)
Email: vino@jncnhomes.com