Traditional houses
LK&1066
PLAN DESCRIPTION
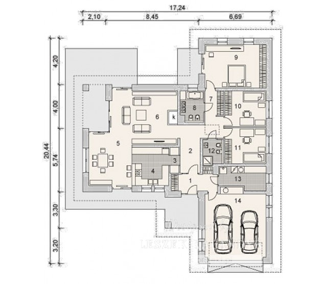
FLOOR PLANS

Ground floor


FULL SPECS & FEATURES
1. Usable area146,05 m²
2. Area garage33,19 m²
3. Total surface240 m²
4. Building area240 m²
5. Net volume503 m³
6. Gross volume990 m³
7. Building height7,01 m
8. Roof angle35 °
9. Roof area396 m²
10. Сeiling height2,82 m
11. Minimum plot size25,24 x 28,44 m


If you need more information, pleasefeel free to contact us.
Contact: Mr. Vino Zhang
Cell: +86-135 6063 2003 (Whatsapp and Wechat No.)
Email: vino@jncnhomes.com