Traditional houses
LK&997
PLAN DESCRIPTION
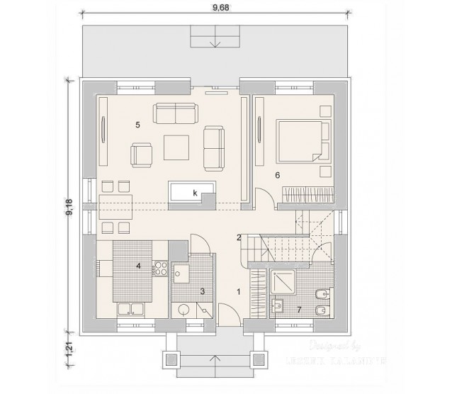
FLOOR PLANS

Ground floor

Attic


FULL SPECS & FEATURES
1. Usable area108,61 m²
2. Total surface178 m²
3. Building area92,76 m²
4. Net volume286 m³
5. Gross volume486 m³
6. Energy for heating7 kWh/m²*year
7. Building height8,6 m
8. Attic wall height1,13 m
9. Roof angle40 °
10. Roof area156 m²
11. Сeiling height2,60/2,85 m
12. Minimum plot size17,68 x 17,39 m


If you need more information, pleasefeel free to contact us.
Contact: Mr. Vino Zhang
Cell: +86-135 6063 2003 (Whatsapp and Wechat No.)
Email: vino@jncnhomes.com