Traditional houses
LK&1107
PLAN DESCRIPTION
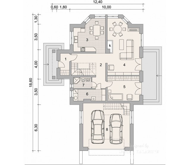
FLOOR PLANS

Ground floor

Attic


FULL SPECS & FEATURES
1. Usable area158,53 m²
2. Area garage34,58 m²
3. Additional area15,21 m²
4. Total surface335 m²
5. Building area174 m²
6. Net volume660 m³
7. Gross volume910 m³
8. Building height8,92 m
9. Attic wall height1,07 m
10. Roof angle40 °
11. Roof area281 m²
12. Сeiling height2,70/2,80 m
13. Minimum plot size26,6 x 19,8 m


If you need more information, pleasefeel free to contact us.
Contact: Mr. Vino Zhang
Cell: +86-135 6063 2003 (Whatsapp and Wechat No.)
Email: vino@jncnhomes.com