Traditional houses
LK&1151
PLAN DESCRIPTION
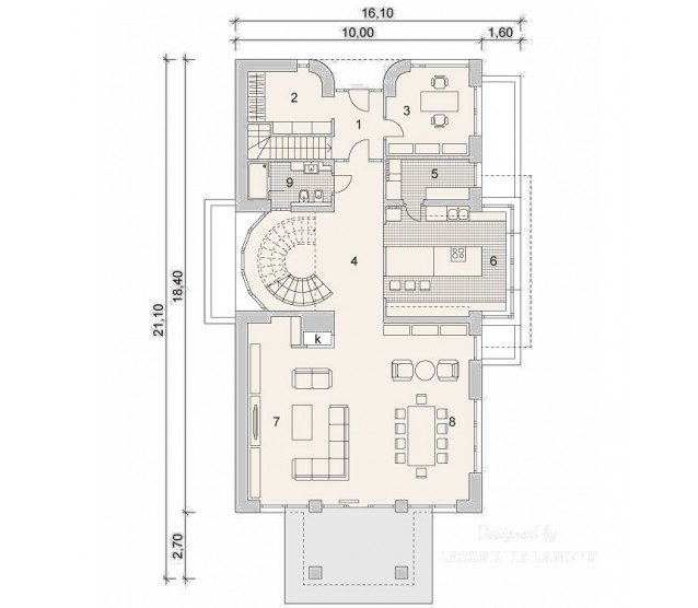
FLOOR PLANS

Basement

Ground floor

Attic


FULL SPECS & FEATURES
1. Usable area98,75 m²
2. Additional area4,54 m²
3. Total surface204,82 m²
4. Building area103,41 m²
5. Net volume326,55 m³
6. Gross volume525,9 m³
7. Building height8,5 m
8. Attic wall height0,9 m
9. Roof angle42 °
10. Roof area172,5 m²
11. Сeiling height2,65 m
12. Minimum plot size18,1 x 18,4 m


If you need more information, pleasefeel free to contact us.
Contact: Mr. Vino Zhang
Cell: +86-135 6063 2003 (Whatsapp and Wechat No.)
Email: vino@jncnhomes.com