Traditional houses
LK&1271
PLAN DESCRIPTION
FLOOR PLANS

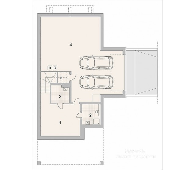
Basement

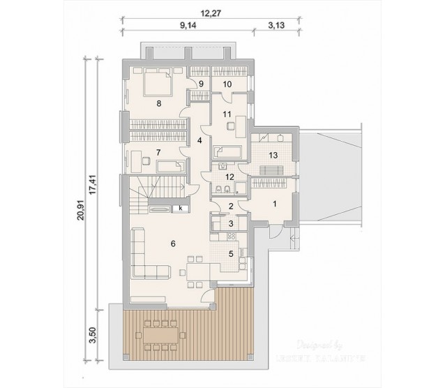
Ground floor

Attic


FULL SPECS & FEATURES
1. Usable area175,86 m²
2. Basement area139,88 m²
3. Additional area0,56 (3,39) m²
4. Total surface529,04 m²
5. Building area214,1 m²
6. Net volume988,64 m³
7. Gross volume1515,18 m³
8. Building height7,48 m
9. Attic wall height0,58 m
10. Roof angle35 °
11. Roof area343,04 m²
12. Сeiling height2,65 m
13. Minimum plot size30,18 x 27,77 m


If you need more information, pleasefeel free to contact us.
Contact: Mr. Vino Zhang
Cell: +86-135 6063 2003 (Whatsapp and Wechat No.)
Email: vino@jncnhomes.com