Traditional houses
LK&1342
PLAN DESCRIPTION
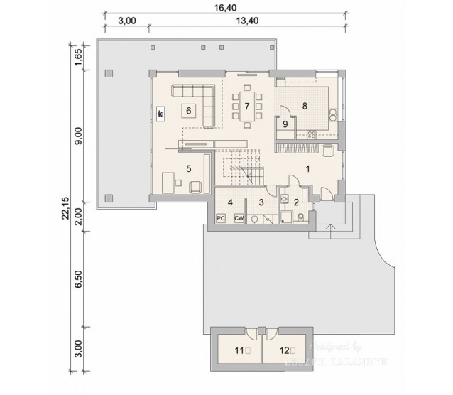
FLOOR PLANS

Ground floor


FULL SPECS & FEATURES
1. Usable area158,49 m²
2. Additional area11,78 m²
3. Total surface242,85 m²
4. Building area135,43 m²
5. Net volume576,61 m³
6. Gross volume731,19 m³
7. Building height8,9 m
8. Attic wall height0,9 m
9. Roof angle41 °
10. Сeiling height2,7 m
11. Minimum plot size28,15 x 24,4 m


If you need more information, pleasefeel free to contact us.
Contact: Mr. Vino Zhang
Cell: +86-135 6063 2003 (Whatsapp and Wechat No.)
Email: vino@jncnhomes.com