Traditional houses
LK&1586
PLAN DESCRIPTION
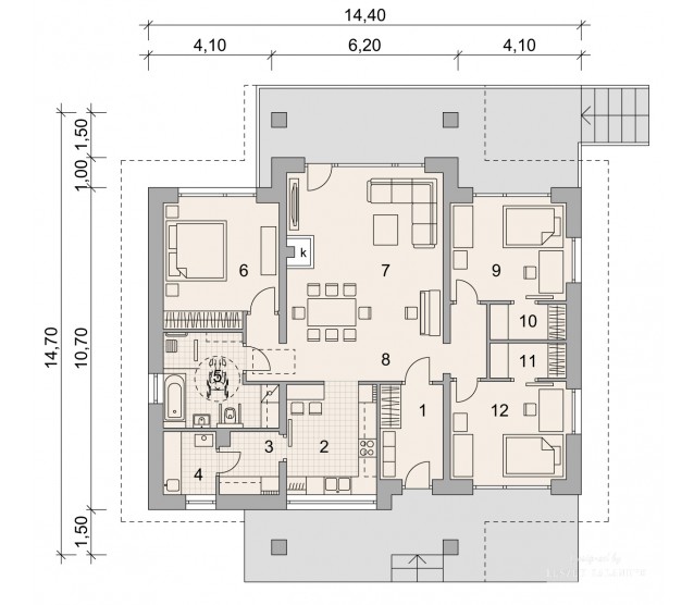
FLOOR PLANS

Ground floor


FULL SPECS & FEATURES
1. Usable area124,91 m²
2. Total surface
3. Building area158,12 m²
4. Net volume
5. Gross volume
6. Building height8,03 m
7. Roof angle35 °
8. Roof area289,78 m²
9. Сeiling heightm
10. Minimum plot size19,70 x 22,40 m


If you need more information, pleasefeel free to contact us.
Contact: Mr. Vino Zhang
Cell: +86-135 6063 2003 (Whatsapp and Wechat No.)
Email: vino@jncnhomes.com