Barnhouses
LK&1382
PLAN DESCRIPTION
FLOOR PLANS

Basement

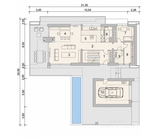
Ground floor

Floor


FULL SPECS & FEATURES
1. Usable area188,2 m²
2. Basement area74,82 m²
3. Area garage29,25 m²
4. Total surface413,08 m²
5. Building area184,49 m²
6. Net volume948,91 m³
7. Gross volume1199,33 m³
8. Building height9 m
9. Attic wall height1,1 m
10. Roof angle42 °
11. Сeiling height2,70 m; 3,00 m m
12. Minimum plot size27,3 x 26,5 m


If you need more information, pleasefeel free to contact us.
Contact: Mr. Vino Zhang
Cell: +86-135 6063 2003 (Whatsapp and Wechat No.)
Email: vino@jncnhomes.com