Barnhouses
LK&1437
PLAN DESCRIPTION
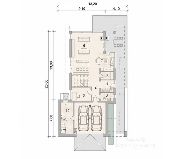
FLOOR PLANS

Ground floor

Attic


FULL SPECS & FEATURES
1. Usable area163,38 m²
2. Area garage36 m²
3. Additional area13,7 m²
4. Total surface302,37 m²
5. Building area194,13 m²
6. Net volume597,69 m³
7. Gross volume698,43 m³
8. Building height9 m
9. Roof angle42 °
10. Roof area232,17 m²
11. Сeiling height2,70 m; 3,00 m
12. Minimum plot size19,7 x 28 m


If you need more information, pleasefeel free to contact us.
Contact: Mr. Vino Zhang
Cell: +86-135 6063 2003 (Whatsapp and Wechat No.)
Email: vino@jncnhomes.com