Barnhouses
LK&1474
PLAN DESCRIPTION
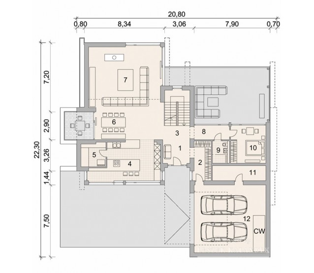
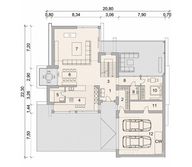
FLOOR PLANS

Basement

Ground floor

Attic


FULL SPECS & FEATURES
1. Usable area284,06 m²
2. Basement area76,5 m²
3. Area garage52,67 m²
4. Total surface450,24 m²
5. Building area304,3 m²
6. Net volume1271,15 m³
7. Gross volume1567,84 m³
8. Building height9,5 m
9. Attic wall height1,16 m
10. Roof angle42 °
11. Roof area275,24 m²
12. Сeiling height2,72 m; 2,70 m; 2,80 m
13. Minimum plot size28,8 x 29,3 m


If you need more information, pleasefeel free to contact us.
Contact: Mr. Vino Zhang
Cell: +86-135 6063 2003 (Whatsapp and Wechat No.)
Email: vino@jncnhomes.com