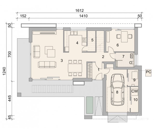
Ground floor
Attic
If you need more information, pleasefeel free to contact us. Contact: Mr. Vino ZhangCell: +86-135 6063 2003 (Whatsapp and Wechat No.)Email: vino@jncnhomes.com