Manors houses
LK&1567
PLAN DESCRIPTION
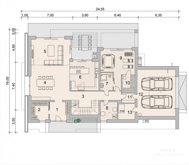
FLOOR PLANS

Ground floor

Attic


FULL SPECS & FEATURES
1. Usable area275,34 m²
2. Area garage43,76 m²
3. Additional area6,57 m²
4. Total surface582,53 m²
5. Building area290,30 m²
6. Net volume1051,08 m³
7. Gross volume1817,90 m³
8. Building height9,25 m
9. Attic wall height1,76 m
10. Roof angle42 °
11. Сeiling height2,70 m
12. Minimum plot size32,70 x 22,50 m


If you need more information, pleasefeel free to contact us.
Contact: Mr. Vino Zhang
Cell: +86-135 6063 2003 (Whatsapp and Wechat No.)
Email: vino@jncnhomes.com