Barnhouses
LK&1595
PLAN DESCRIPTION
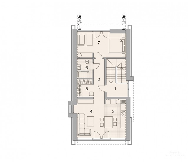
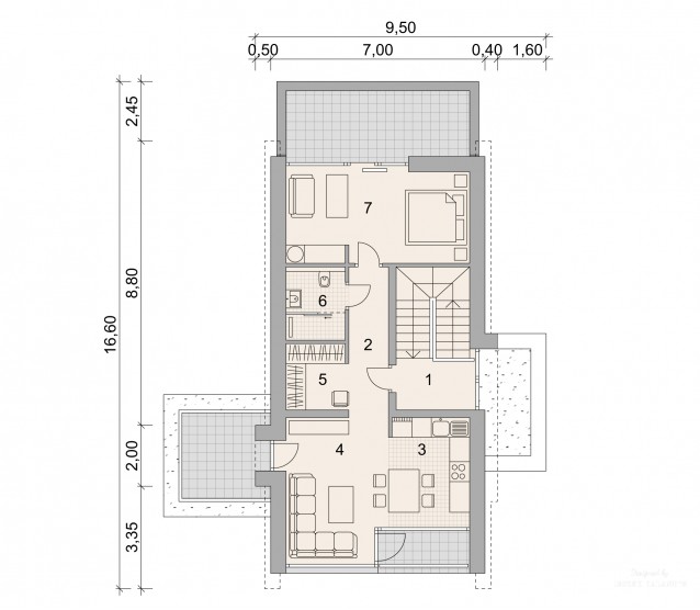
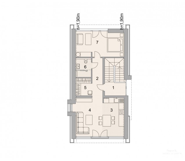
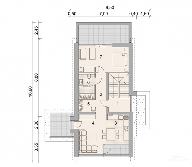
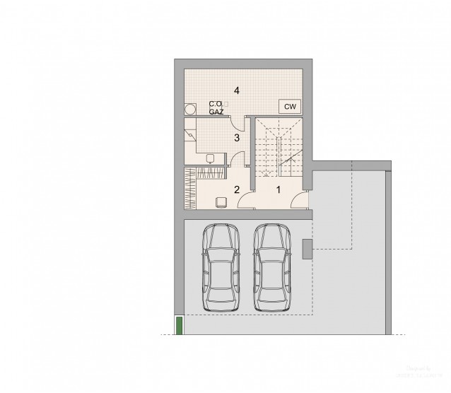
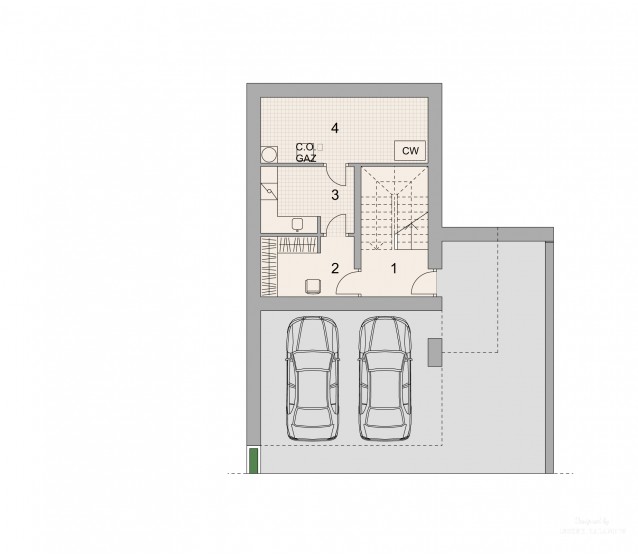
FLOOR PLANS

Basement

Ground floor

Attic


FULL SPECS & FEATURES
1. Usable area126,36 m²
2. Additional area38,05 m²
3. Total surface252,46 m²
4. Building area95,81 m²
5. Net volume489,65 m³
6. Gross volume948,33 m³
7. Building height8,40 m
8. Attic wall height1,00 m
9. Roof angle42 °
10. Сeiling height2,60 m
11. Minimum plot size21,65 x 15,00 m


If you need more information, pleasefeel free to contact us.
Contact: Mr. Vino Zhang
Cell: +86-135 6063 2003 (Whatsapp and Wechat No.)
Email: vino@jncnhomes.com