Barnhouses
LK&1612
PLAN DESCRIPTION
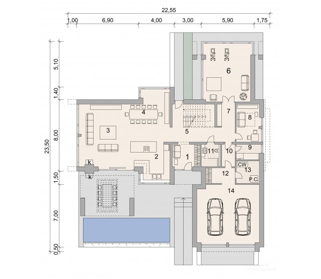
FLOOR PLANS

Ground floor

Attic


FULL SPECS & FEATURES
1. Usable area306,35 m²
2. Total surface490,25 m²
3. Building area288,20 m²
4. Net volume
5. Gross volume
6. Building height9,15 m
7. Roof angle42 °
8. Roof area
9. Сeiling height2,80 m
10. Minimum plot size29,05 x 29,00 m


If you need more information, pleasefeel free to contact us.
Contact: Mr. Vino Zhang
Cell: +86-135 6063 2003 (Whatsapp and Wechat No.)
Email: vino@jncnhomes.com